| Самовывоз: | Московская обл., г.Истра |
| Доставка: | ПЭК. КИТ. Деловые линии |
| Поставка: | 2-3 рабочих дня |
| В наличии: | г. Москва |
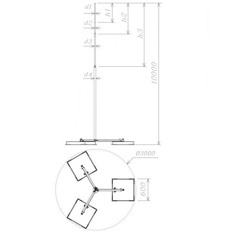
| h1/h2/h3: | 1,0/3,0/6,0 м |
| Для ветрового района: | I-IV |
| Вес: | 223-258 кг |
| Высота: | 10 метров |
PDF AutoCAD Видео Каталог Монтаж
Молниеприемная мачта с креплением на плоскую кровлю 10 метров, предназначен для защиты зданий от попадания молнии при устройстве молниезащиты.
В комплект молниеприемной мачты с креплением на плоскую кровлю входит: мачта, комплект для установки молниеприемной мачты на плоскую кровлю, соединитель молниеприемной мачты круглого проводника Ø6-Ø12 мм.
Выпускается:
- из оцинкованной стали - артикул GR130101,
- из нержавеющей стали - артикул GR130103,
- из окрашенной оцинкованной стали - артикул GR130104. Цвет - коричневый, красный, терракотовый, синий, зелёный, чёрный, серый.
- из алюминия - артикул GR130105,
Молниеприемную мачту можно установить на ПВХ, инверсионную и рулонную кровлю. Проводник крепится к мачте при помощи болтового соединителя.
Молниеприемная мачта Громостар позволяет защитить объекты находящиеся в близи его установки.
Подробности касающиеся способа установки молниеприемной мачты найдете на сайте. Молниеприемная мачта выпускается из оцинкованной сталь St/Zn, нержавеющей стали VA и алюминия Al.
Возможна порошковая окраска молниеприемной мачты из оцинкованной стали, нержавеющей стали и алюминия в стандартные цвета: коричневый, красный, терракотовый, синий, зелёный, чёрный, серый.
Соответствует нормативным документам, регламентирующим требования к молниезащите зданий: «Инструкция по молниезащите зданий и сооружений» РД 34.21.122-87 от 30 июля 1987 года и «Инструкция по устройству молниезащиты зданий, сооружений и промышленных коммуникаций» CO 153-343.21.122-2003 от 30 июня 2003 г.
Предназначено для эксплуатации в районах с ветровым давлением I-III в соответствие с ПУЭ (7-е издание) в районах Крайнего Севера с температурой до -60 градусов и высотой установки до 50 метров. Для районов с ветровым давлением IV-VII - изготовим по вашему запросу.

51 114р.
30 651р.
31 110р.
55р.
326р.
127р.
141р.
102р.
154р.
53 368р.
11 955р.
31 975р.
33 175р.
140р.
74р.
74р.
74р.
6 921р.
11 158р.
7 904р.
17 060р.
2 666р.
171р.
1р.
4 001р. 2 001р.
10 215р.
28 223р.
172р.