| Самовывоз: | Московская обл., г.Истра |
| Доставка: | ПЭК. КИТ. Деловые линии |
| Поставка: | 2-3 рабочих дня |
| В наличии: | г. Москва |
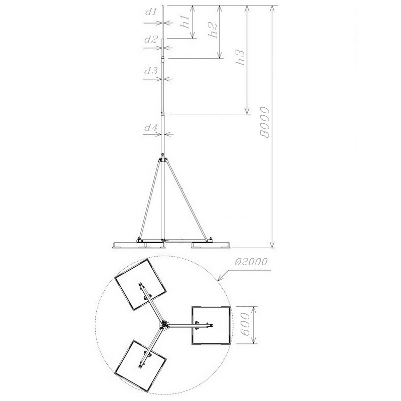
| h1/h2/h3: | 1,0/3,0/4,0 м |
| Для ветрового района: | I-IV |
| Вес: | 20,5-48,2 кг. |
| Высота: | 8 метров |
PDF AutoCAD Видео Каталог Монтаж
Молниеприёмная мачта 8 метров на плоскую кровлю с рамкой для бетонных плит, предназначен для защиты зданий от попадания молнии при устройстве молниезащиты.
В комплект молниеприемной мачты с формой для бетонного основания 8 метров на плоскую кровлю (транспортировочный вариант) входит: мачта, форма для заливки бетонного основания для молниеприемной мачты на плоскую кровлю, соединитель молниеприемной мачты круглого проводника Ø6-Ø12 мм.
Выпускается:
- из оцинкованной стали - артикул GR130281,
- из нержавеющей стали - артикул GR130283,
- из окрашенной оцинкованной стали - артикул GR130284. Цвет - коричневый, красный, терракотовый, синий, зелёный, чёрный, серый.
- из алюминия - артикул GR130285,
Молниеприемник можно установить на ПВХ, инверсионную и рулонную кровлю. Проводник крепится к молниеприемнику при помощи болтового соединителя.
Молниеприемник Громостар позволяет защитить объекты находящиеся в близи его установки.
Подробности касающиеся способа установки молниеприемника найдете на сайте. Молниеприемник выпускается из оцинкованной сталь St/Zn, нержавеющей стали VA и алюминия Al.
Возможна порошковая окраска молниеприемника из оцинкованной стали, нержавеющей стали и алюминия в стандартные цвета: коричневый, красный, терракотовый, синий, зелёный, чёрный, серый.
Соответствует нормативным документам, регламентирующим требования к молниезащите зданий: «Инструкция по молниезащите зданий и сооружений» РД 34.21.122-87 от 30 июля 1987 года и «Инструкция по устройству молниезащиты зданий, сооружений и промышленных коммуникаций» CO 153-343.21.122-2003 от 30 июня 2003 г.
Предназначено для эксплуатации в районах с ветровым давлением I-III в соответствие с ПУЭ (7-е издание) в районах Крайнего Севера с температурой до -60 градусов и высотой установки до 50 метров. Для районов с ветровым давлением IV-VII - изготовим по вашему запросу.

16 335р.
29 065р.
42 503р.
20 293р.
29 994р.
65р.
255р.
1 985р. 993р.
14 403р.
86 389р.
782р. 547р.
811р. 568р.
18 835р.
7 405р.
1 070р.
24 583р.
21 045р.
29 065р.
196р.