| Самовывоз: | Московская обл., г.Истра |
| Доставка: | СДЕК. ПЭК. КИТ. Деловые линии |
| Поставка: | 2-3 рабочих дня |
| В наличии: | г. Москва |
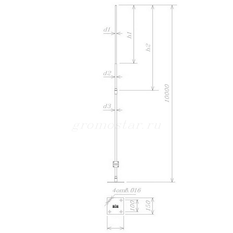
| h1/h2/h3: | 1,0/3,0/6,0 м. |
| Для ветрового района: | I-IV |
| Вес: | 11,6-43,4 кг |
| Высота: | 10 метров |
Молниеприемная мачта на анкерах и оттяжках 10 метров Громостар предназначен для молниезащиты зданий, сооружений, элементов крыши, и т.д., которые согласно технике безопасности, должны быть защищены от попадания молнии.
Для установки мачты имеется специальное откидное крепления для ручной установки мачты.
Молниеприемная мачта с анкерным креплением и откидным механизмом имеет в составе: молниеприёмная мачта с закладной деталью, соединитель для присоединения мачты к проводнику, оттяжки. Молниеприёмная мачта устанавливается на бетонную плоскую кровлю и закрепляется анкерными болтами и оттяжками.
В комплект молниеприёмной мачты входит: мачта, комплект крепления для установки мачты на кровлю, соединитель мачты и проводника.
Выпускается:
- из оцинкованной стали - артикул GR130401,
- из нержавеющей стали - артикул GR130403,
- из окрашенной оцинкованной стали - артикул GR130404. Цвет - коричневый, красный, терракотовый, синий, зелёный, чёрный, серый.
- из алюминия - артикул GR130405,
Молниеприёмную мачту можно установить на грунт и плоскую кровлю. Проводник крепится к молниеприёмной мачте при помощи болтового соединителя.
Молниеприёмная мачта Громостар позволяет защитить объекты находящиеся в близи его установки.
Подробности касающиеся способа установки и крепления найдете на сайте. Молниеприёмная мачта выпускается из оцинкованной сталь St/Zn, нержавеющей стали VA и алюминия Al.
Возможна порошковая окраска мачты из оцинкованной стали, нержавеющей стали и алюминия в стандартные цвета - коричневый, красный, терракотовый, синий, зелёный, чёрный, серый.
Соответствует нормативным документам, регламентирующим требования к молниезащите зданий: «Инструкция по молниезащите зданий и сооружений» РД 34.21.122-87 от 30 июля 1987 года и «Инструкция по устройству молниезащиты зданий, сооружений и промышленных коммуникаций» CO 153-343.21.122-2003 от 30 июня 2003 г.
Предназначено для эксплуатации в районах с ветровым давлением I-III в соответствие с ПУЭ (7-е издание) в районах Крайнего Севера с температурой до -60 градусов и высотой установки до 50 метров. Для районов с ветровым давлением IV-VII - изготовим по вашему запросу.

37 515р.
36 375р.
35 635р.
27 323р.
8 439р.
173р.
280 430р.
1р.
1р.
20 043р.
2 133р.
2 782р.
39 935р.
24 643р.
36 375р.
35 635р.
210р.
210р.
210р.