| Самовывоз: | Московская обл., г.Истра |
| Доставка: | ПЭК. КИТ. Деловые линии |
| Поставка: | 2-4 рабочих дня |
| В наличии: | г. Москва |
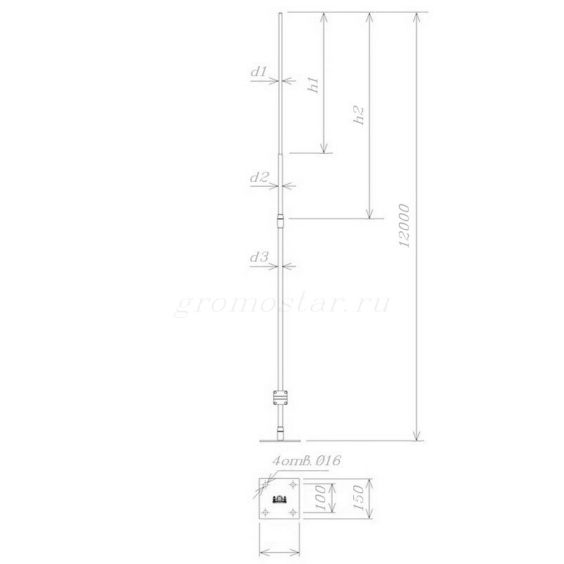
| h1/h2/h3: | 0,5/5,5/6,0 |
| Для ветрового района: | I-IV |
| Вес: | 34,5-69,0 кг |
| Высота: | 12 метров |
Молниеприемная мачта на растяжках 12 метров Громостар предназначен для молниезащиты зданий, сооружений, элементов крыши, и т.д., которые согласно технике безопасности, должны быть защищены от попадания молнии.
Для установки мачты имеется специальное откидное крепления для ручной установки мачты.
Молниеприемная мачта на растяжках с откидным механизмом имеет в составе: молниеприёмная мачта с закладной деталью, соединитель для присоединения мачты к проводнику, комплект растяжек. Молниеприёмная мачта устанавливается на бетонную плоскую кровлю и закрепляется анкерными болтами и оттяжками.
В комплект молниеприёмной мачты входит: мачта, комплект крепления для установки мачты на кровлю, соединитель мачты и проводника.
Выпускается:
- из оцинкованной стали - артикул GR150121,
- из нержавеющей стали - артикул GR150123,
- из окрашенной оцинкованной стали - артикул GR150124. Цвет - коричневый, красный, терракотовый, синий, зелёный, чёрный, серый.
- из алюминия - артикул GR150125,
Молниеприёмную мачту можно установить на грунт и плоскую кровлю. Проводник крепится к молниеприёмной мачте при помощи болтового соединителя.
Молниеприёмная мачта Громостар позволяет защитить объекты находящиеся в близи его установки.
Подробности касающиеся способа установки и крепления найдете на сайте. Молниеприёмная мачта выпускается из оцинкованной сталь St/Zn, нержавеющей стали VA и алюминия Al.
Возможна порошковая окраска мачты из оцинкованной стали, нержавеющей стали и алюминия в стандартные цвета - коричневый, красный, терракотовый, синий, зелёный, чёрный, серый.
Соответствует нормативным документам, регламентирующим требования к молниезащите зданий: «Инструкция по молниезащите зданий и сооружений» РД 34.21.122-87 от 30 июля 1987 года и «Инструкция по устройству молниезащиты зданий, сооружений и промышленных коммуникаций» CO 153-343.21.122-2003 от 30 июня 2003 г.
Предназначено для эксплуатации в районах с ветровым давлением I-III в соответствие с ПУЭ (7-е издание) в районах Крайнего Севера с температурой до -60 градусов и высотой установки до 50 метров. Для районов с ветровым давлением IV-VII - изготовим по вашему запросу.

15 701р.
6 860р.
6 993р.
146р.
1 811р.
92р.
15 699р.
324р.
184р.
342 792р.
1р.
227р.
8 290р.
4 400р.
4 077р.
2 263р.
6 833р.
50 945р.