| Самовывоз: | Московская обл., г.Истра |
| Доставка: | ПЭК. КИТ. Деловые линии |
| Поставка: | 2-4 рабочих дня |
| В наличии: | г. Москва |
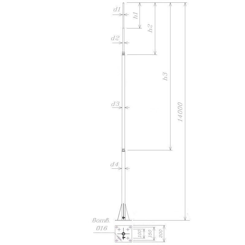
| h1/h2/h3: | 2,0/6,0/6,0 м. |
| Для ветрового района: | I-VI |
| Вес: | 35,8-73,3 кг |
| Высота: | 14 метров |
Молниеприемная мачта на растяжках 14 метров Громостар предназначен для молниезащиты зданий, сооружений, элементов крыши, и т.д., которые согласно технике безопасности, должны быть защищены от попадания молнии.
Для установки мачты имеется специальное откидное крепления для ручной установки мачты.
Молниеприемная мачта на растяжках с откидным механизмом имеет в составе: молниеприёмная мачта с закладной деталью, соединитель для присоединения мачты к проводнику, комплект растяжек. Молниеприёмная мачта устанавливается на бетонную плоскую кровлю и закрепляется анкерными болтами и оттяжками.
В комплект молниеприёмной мачты входит: мачта, комплект крепления для установки мачты на кровлю, соединитель мачты и проводника.
Выпускается:
- из оцинкованной стали - артикул GR150141,
- из нержавеющей стали - артикул GR150143,
- из окрашенной оцинкованной стали - артикул GR150144. Цвет - коричневый, красный, терракотовый, синий, зелёный, чёрный, серый.
- из алюминия - артикул GR150145,
Молниеприёмную мачту можно установить на грунт и плоскую кровлю. Проводник крепится к молниеприёмной мачте при помощи болтового соединителя.
Молниеприёмная мачта Громостар позволяет защитить объекты находящиеся в близи его установки.
Подробности касающиеся способа установки и крепления найдете на сайте. Молниеприёмная мачта выпускается из оцинкованной сталь St/Zn, нержавеющей стали VA и алюминия Al.
Возможна порошковая окраска мачты из оцинкованной стали, нержавеющей стали и алюминия в стандартные цвета - коричневый, красный, терракотовый, синий, зелёный, чёрный, серый.
Соответствует нормативным документам, регламентирующим требования к молниезащите зданий: «Инструкция по молниезащите зданий и сооружений» РД 34.21.122-87 от 30 июля 1987 года и «Инструкция по устройству молниезащиты зданий, сооружений и промышленных коммуникаций» CO 153-343.21.122-2003 от 30 июня 2003 г.
Предназначено для эксплуатации в районах с ветровым давлением I-III в соответствие с ПУЭ (7-е издание) в районах Крайнего Севера с температурой до -60 градусов и высотой установки до 50 метров. Для районов с ветровым давлением IV-VII - изготовим по вашему запросу.

15 701р.
6 860р.
6 993р.
133р.
141р.
19 136р.
121р.
14 925р.
219р.
518р.
171р.
31 216р.
14 265р.
32 175р.
52 565р.
34 155р.
31 575р.
164р.