| Самовывоз: | Московская обл., г.Истра |
| Доставка: | ПЭК. КИТ. Деловые линии |
| Поставка: | 2-3 рабочих дня |
| В наличии: | г. Москва |
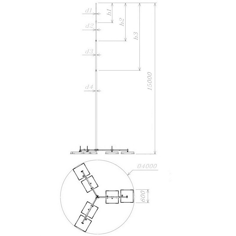
| h1/h2/h3: | 3,0/6,0/6,0 м. |
| Для ветрового района: | I-IV |
| Вес: | 434-478 кг |
| Высота: | 15 метров |
PDF AutoCAD Видео Каталог Монтаж
Молниеприемная мачта с креплением на плоскую кровлю 15 метров, предназначен для защиты зданий от попадания молнии при устройстве молниезащиты.
В комплект молниеприемной мачты с креплением на плоскую кровлю входит: мачта, комплект для установки молниеприемной мачты на плоскую кровлю, соединитель молниеприемной мачты круглого проводника Ø6-Ø12 мм.
Выпускается:
- из оцинкованной стали - артикул GR130151,
- из нержавеющей стали - артикул GR130153,
- из окрашенной оцинкованной стали - артикул GR130154. Цвет - коричневый, красный, терракотовый, синий, зелёный, чёрный, серый.
- из алюминия - артикул GR130155,
Молниеприемную мачту можно установить на ПВХ, инверсионную и рулонную кровлю. Проводник крепится к мачте при помощи болтового соединителя.
Молниеприемная мачта Громостар позволяет защитить объекты находящиеся в близи его установки.
Подробности касающиеся способа установки молниеприемной мачты найдете на сайте. Молниеприемная мачта выпускается из оцинкованной сталь St/Zn, нержавеющей стали VA и алюминия Al.
Возможна порошковая окраска молниеприемной мачты из оцинкованной стали, нержавеющей стали и алюминия в стандартные цвета: коричневый, красный, терракотовый, синий, зелёный, чёрный, серый.
Соответствует нормативным документам, регламентирующим требования к молниезащите зданий: «Инструкция по молниезащите зданий и сооружений» РД 34.21.122-87 от 30 июля 1987 года и «Инструкция по устройству молниезащиты зданий, сооружений и промышленных коммуникаций» CO 153-343.21.122-2003 от 30 июня 2003 г.
Предназначено для эксплуатации в районах с ветровым давлением I-III в соответствие с ПУЭ (7-е издание) в районах Крайнего Севера с температурой до -60 градусов и высотой установки до 50 метров. Для районов с ветровым давлением IV-VII - изготовим по вашему запросу.

51 114р.
30 651р.
31 110р.
79р.
3 141р.
177р.
145р.
131р.
3 401р.
15 715р.
205р.
153р.
44 229р.
23 170р.
624р.
526р. 263р.
1 284р. 642р.
433р. 303р.
1 526р.
48 525р.
3 284р.
1 513р.
14 868р.
4 345р.
88р.
30 465р.
139р.
295р.