| Самовывоз: | Московская обл., г.Истра |
| Доставка: | ПЭК. КИТ. Деловые линии |
| Поставка: | 2-4 рабочих дня |
| В наличии: | г. Москва |
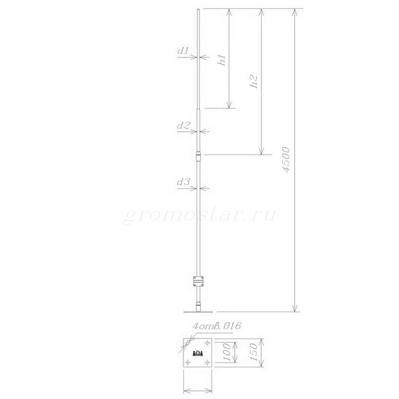
| h1/h2: | 0,5/4,0 м. |
| Для ветрового района: | I-IV |
| Вес: | 17,6-28,1 кг |
| Высота: | 4,5 метра |
Отдельно стоящая молниеприемная мачта 4,5 метра GROMOSTAR с откидным механизмам для ручной установки предназначен для молниезащиты зданий, сооружений, элементов крыши, и т.д., которые согласно технике безопасности, должны быть защищены от попадания молнии.
Для установки молниеприемной мачты имеется специальное крепления.
Отдельно стоящая молниеприемная мачта 4,5 метра GROMOSTAR с откидным механизмам для ручной установки имеет в составе: мачта, закладная, соединитель для присоединения мачты к проводнику. Молниеприемная мачта устанавливается на грунт.
В комплект молниеприемной мачты входит: мачта, закладная для установки, соединитель мачты и проводника.
Выпускается:
- из оцинкованной стали - артикул GR160941,
- из нержавеющей стали - артикул GR160943,
- из окрашенной оцинкованной стали - артикул GR160944. Цвет - коричневый, красный, терракотовый, синий, зелёный, чёрный, серый.
- из алюминия - артикул GR160945,
Молниеприемную мачту можно установить на грунт. Проводник крепится к мачте при помощи болтового соединителя или сварки.
Молниеприемная мачта Громостар позволяет защитить объекты находящиеся в близи его установки.
Подробности касающиеся способа установки и крепления найдете на сайте. Молниеприемная мачта выпускается из оцинкованной сталь St/Zn, нержавеющей стали VA и алюминия Al.
Возможна окраска мачты из оцинкованной стали, нержавеющей стали и алюминия в стандартные цвета - коричневый, красный, терракотовый, синий, зелёный, чёрный, серый.
Соответствует нормативным документам, регламентирующим требования к молниезащите зданий: «Инструкция по молниезащите зданий и сооружений» РД 34.21.122-87 от 30 июля 1987 года и «Инструкция по устройству молниезащиты зданий, сооружений и промышленных коммуникаций» CO 153-343.21.122-2003 от 30 июня 2003 г.
Предназначено для эксплуатации в районах с ветровым давлением I-III в соответствие с ПУЭ (7-е издание) в районах Крайнего Севера с температурой до -60 градусов и высотой установки до 50 метров. Для районов с ветровым давлением IV-VII - изготовим по вашему запросу.

10 433р.
19 635р.
15 715р.
17 013р.
29 994р.
65р.
1 985р. 993р.
14 403р.
86 389р.
782р. 547р.
811р. 568р.
7 405р.
1 070р.
10 203р.
21 045р.
29 065р.
196р.