| Самовывоз: | Московская обл., г.Истра |
| Доставка: | ПЭК. КИТ. Деловые линии |
| Поставка: | 2-3 рабочих дня |
| В наличии: | г. Москва |
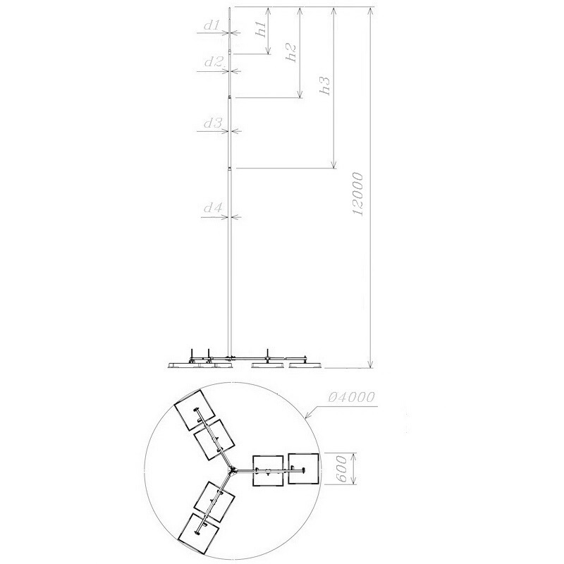
| h1/h2/h3: | 0,5/5,5/6,0 |
| Для ветрового района: | I-IV |
| Вес: | 226-266 кг |
| Высота: | 12 метров |
PDF AutoCAD Видео Каталог Монтаж
Молниеприемная мачта с креплением на плоскую кровлю 12 метров, предназначен для защиты зданий от попадания молнии при устройстве молниезащиты.
В комплект молниеприемной мачты с креплением на плоскую кровлю входит: мачта, комплект для установки молниеприемной мачты на плоскую кровлю, соединитель молниеприемной мачты круглого проводника Ø6-Ø12 мм.
Выпускается:
- из оцинкованной стали - артикул GR130421,
- из нержавеющей стали - артикул GR130423,
- из окрашенной оцинкованной стали - артикул GR130424. Цвет - коричневый, красный, терракотовый, синий, зелёный, чёрный, серый.
- из алюминия - артикул GR130425,
Молниеприемную мачту можно установить на ПВХ, инверсионную и рулонную кровлю. Проводник крепится к мачте при помощи болтового соединителя.
Молниеприемная мачта Громостар позволяет защитить объекты находящиеся в близи его установки.
Подробности касающиеся способа установки молниеприемной мачты найдете на сайте. Молниеприемная мачта выпускается из оцинкованной сталь St/Zn, нержавеющей стали VA и алюминия Al.
Возможна порошковая окраска молниеприемной мачты из оцинкованной стали, нержавеющей стали и алюминия в стандартные цвета: коричневый, красный, терракотовый, синий, зелёный, чёрный, серый.
Соответствует нормативным документам, регламентирующим требования к молниезащите зданий: «Инструкция по молниезащите зданий и сооружений» РД 34.21.122-87 от 30 июля 1987 года и «Инструкция по устройству молниезащиты зданий, сооружений и промышленных коммуникаций» CO 153-343.21.122-2003 от 30 июня 2003 г.
Предназначено для эксплуатации в районах с ветровым давлением I-III в соответствие с ПУЭ (7-е издание) в районах Крайнего Севера с температурой до -60 градусов и высотой установки до 50 метров. Для районов с ветровым давлением IV-VII - изготовим по вашему запросу.

51 114р.
30 651р.
31 110р.
35р.
12 292р.
84р.
370р.
113р.
250р.
98р.
158р.
123р.
182р.
253р.
107р.
40 145р.
89р.
16 855р.